Схемы в Visio
Для того чтобы сделать проект освещения небольшого помещения, не обязательно быть «крутым» проектировщиком, и иметь дорогостоящее, сложное программное обеспечение, доступное только подготовленным пользователям. Используя доступные сервисы и программное обеспечение, не требующее значительных затрат и времени на обучение, можно сделать качественный проект.
Для того чтобы рассчитать освещение, сделать расчет нагрузок и выбрать аппараты защиты, составить спецификацию изделий и рассчитать стоимость проекта, можно воспользоваться программами и сервисами, описанными в статье: О программах расчета и проектирования систем электроснабжения зданий, на сайте iElectro.
В данной статье, я на примере расскажу, как с помощью простой и удобной программы Visio и созданных мной трафаретов условных графических обозначений выполнить чертежи и схемы для проекта освещения квартиры.
Существует множество путей для решения поставленной задачи. Мы с Вами, рассмотрим один из них, усвоив который Вы сможете самостоятельно начертить:
План квартиры (здания)
Схему осветительной сети
Схему розеточной сети
Выполнить однолинейную схему электроснабжения квартиры.
Уроки, на которых я поэтапно на примере расскажу, как начертить схемы и познакомлю с инструментами и возможностями Visio, рассчитаны на начинающих пользователей ПК, изучив которые, Вы сможете сделать проект любой сложности.
Пользователям Комплекта для черчения электрических схем, данный материал будет так же полезен. Для создания чертежей, рассмотренных в данной статье, используются другие способы и инструменты, которые не использовались для черчения электрических принципиальных схем, о которых я рассказывал в видео-курсе.
Более опытные пользователи программы Visio, возможно найдут для себя новые интересные моменты использования инструментов программы, а возможно предложат свои варианты решения поставленной задачи, которые я с удовольствием опубликую на сайте.
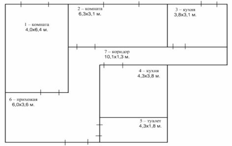
Эскиз квартиры с размерами комнат, на основе которого необходимо начертить план:
Эскиз квартиры
Для черчения плана квартиры используем программу Visio.
Запускаем программу Visio.
В меню Файл последовательно выбираем команды Создать, Карты и планы этажей, а затем – команду План этажа.
По умолчанию этот шаблон будет открыт на масштабированной странице документа размером А1 и в масштабе 1:50 с альбомной ориентацией.
Исходя из размеров квартиры – 14,1х10 м., выбираем свой размер страницы и масштаб:
Для этого, в меню Файл выбираем команду Параметры страницы.
В закладке Размер страницы выбираем предопределенный размер А3.
В закладке Масштаб документа выбираем предопределенный масштаб 1:50.
Произведем необходимую настройку инструментов:
На панели инструментов Вид, включим инструмент Размер и положение.
На панели инструментов Привязать и приклеить, оставим включенным только пункт Привязка к рамке выравнивания.
Из набора элементов Структурные элементы, расположенного слева на панели Фигуры, перетащите на страницу документа фигуру Место. Последовательно нажимая на панели Размер и положение, кнопки Ширина и Высота, введем значение высоты и ширины, что будет соответствовать длине и ширине комнаты 1.
Повторим пункт 6, для каждого помещения квартиры, располагая полученные фигуры в соответствии с планом. Получим следующее изображение:
